Espace propriétaire
fr

Votre recherche

Nouveauté
Saint-Laurent-de-Mure (69720)

1 pièces - 50 m²

Local Commercial à louer

1 200 € / mois HC*
Ref : 25/22
Découvrir le bien

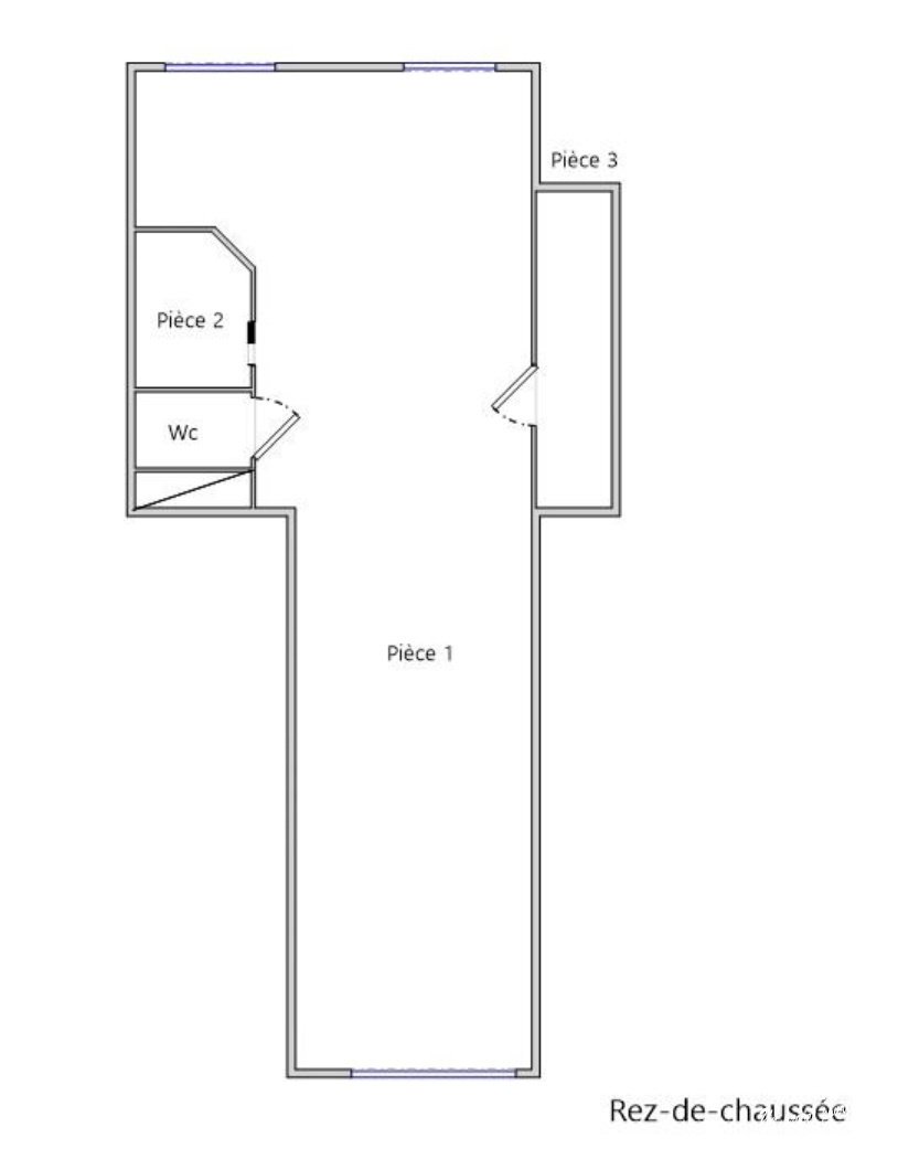
À LOUER – Local commercial 50 m² – Emplacement n°1 – Rue passante et commerçante

Situé sur une artère très fréquentée de St Laurent de Mure, ce local commercial traversant et lumineux de 50 m² offre une excellente visibilité et un fort potentiel commercial.

Idéal pour toute activité souhaitant bénéficier d’un environnement dynamique et d’un flux piéton constant.

Caractéristiques :

  • Superficie : 50 m²
  • Traversant, bénéficiant d’une belle luminosité naturelle
  • Vitrine sur rue offrant une visibilité optimale
  • Espace principal modulable, adapté à différentes activités
  • Point d’eau / sanitaires / coin réserve
  • Place de stationnement privative incluse

Atouts :

  • Rue commerçante et dynamique
  • Emplacement stratégique avec fort passage piéton et véhicules
  • Stationnement privé et parkings publics à proximité
  • Accès facile aux transports

Conditions :

  • Loyer mensuel : 1200€ HT/HC
  • Disponibiité : immédiate
  • Charges : 30€ TTC/mois

Modalité de récupération des charges locatives : Prévisionnelles mensuelles avec régularisation annuelle.

Honoraires d'agence :
  • Honoraires à la charge du locataire : 650€ TTC (dont 400€TTC pour l'état des lieux et 150€ TTC pour la rédaction du bail commercial)
  • Dépôt de garantie : 1200€ HT

Contact agence : Maud GARREL MTC IMMO, 06 17 29 35 52, EI inscrit au RCS Vienne sous le num 885 121 566.


Les informations sur les risques auxquels ce bien est exposé sont disponibles sur le site Géorisques
TRAD_ZEPHYR_Caracteristique TRAD_ZEPHYR_Valeurs
Type de transac Local commercial
Code postal 69720
Nombre de pièces 1
Nombre de niveaux 1
Superficie (m²) 50
TRAD_ZEPHYR_Caracteristique TRAD_ZEPHYR_Valeurs
Mode de chauffage Pompe à chaleur
Type de chauffage Air pulsé
Format de chauffage Individuel
Exposition Nord-Sud
Année de construction 2005
Vitrine OUI
TRAD_ZEPHYR_Caracteristique TRAD_ZEPHYR_Valeurs
Copropriété OUI
TRAD_ZEPHYR_Caracteristique TRAD_ZEPHYR_Valeurs
Loyer 1 200 € / mois
Dont état des lieux Non renseigné
Dépot de garantie Non renseigné
Charges locatives (provision donnant lieu à régularisation annuelle) 30 €
Bail Commercial
DPE GES
  • Commerces et santé
  • Loisirs
  • Ecoles
  • Transports
  • Pratique
Contacter pour ce bien
L'agence
Téléphone 06 80 63 18 84
Adresse
159 Rue du Bugey 01360 Loyettes

* Champ obligatoire

Les informations recueillies sur ce formulaire sont enregistrées dans un fichier informatisé par La Boite Immo agissant comme Sous-traitant du traitement pour la gestion de la clientèle/prospects de l'Agence / du Réseau qui reste Responsable du Traitement de vos Données personnelles. La base légale du traitement repose sur l'intérêt légitime de l'Agence / du Réseau. Elles sont conservées jusqu'à demande de suppression et sont destinées à l'Agence / au Réseau. Conformément à la loi « informatique et libertés », vous disposez des droits d’accès, de rectification, d’effacement, d’opposition, de limitation et de portabilité de vos données. Vous pouvez retirer votre consentement à tout moment en contactant directement l’Agence / Le Réseau. Consultez le site https://cnil.fr/fr pour plus d’informations sur vos droits. Si vous estimez, après avoir contacté l'Agence / le Réseau, que vos droits « Informatique et Libertés » ne sont pas respectés, vous pouvez adresser une réclamation à la CNIL. Nous vous informons de l’existence de la liste d'opposition au démarchage téléphonique « Bloctel », sur laquelle vous pouvez vous inscrire ici : https://www.bloctel.gouv.fr Dans le cadre de la protection des Données personnelles, nous vous invitons à ne pas inscrire de Données sensibles dans le champ de saisie libre.
Ce site est protégé par reCAPTCHA, les Politiques de Confidentialité et les Conditions d'Utilisation de Google s'appliquent.

Découvrir nos outils